Shulman Home and Studio

Project Details

Project Name
Shulman Home and Studio
Location
Los AngelesCA
Project Types
Single Family
Project Scope
Preservation/Restoration
Shared By
Victoria Carodine
Project Status
Built
Size
4,000 ft²

Project Description

2016 Residential Architect Design Awards
Restoration/Preservation: Award

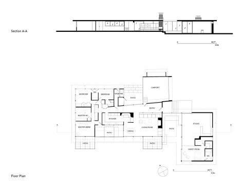
The chief documentarian of midcentury modern architecture, photographer Julius Shulman, was also one of its patrons: He commissioned modernist architect Raphael Soriano to design an elegant, geometric home for his family in the Hollywood Hills. Completed in 1950, the Schulman Home and Studio in Los Angeles is now home to a new young family after a restoration by Lorcan O’Herlihy Architects. Through extensive research, the firm upgraded features and amenities while maintaining the original materiality and design intentions. Juror Dan Maginn called the restoration “very respectful, but also fearless. The architects went for it in a couple of areas, but the changes are definitely within the original DNA of the Schulman house.” The cork-lined entryway has been restored, and new adjustable screens have been added to the home’s plentiful glass walls and sliding doors. New cabinetry and shelves were added in a way that respects Soriano’s original design intent while also creating space to integrate modern HVAC equipment—avoiding its intrusion on the house’s flat roofline. The most significant change to the building was an alteration of the floor plan to accommodate a guest bedroom, which was achieved without altering the structure’s steel frame. It all combines into a restoration that preserves the past while enabling its use by a new generation. “I love seeing when architects know not to change things to create good architecture,” juror Kevin Kudo-King said. “It’s a great refresh, and still very respectful of the bones that are there. I think it’s a great project.”

Upcoming Events

  • Happier Homebuyers, Higher Profits: Specifying Fireplaces for Today’s Homes

    Webinar

    Register for Free
  • Sales is a Sport: These Tactics Are the Winning Play

    Webinar

    Register for Free
  • Dispelling Myths and Maximizing Value: Unlock the Potential of Open Web Floor Trusses

    Webinar

    Register for Free
All Events