Simmons Hall, Massachusetts Institute of Technology

Project Details

Project Name
Simmons Hall, Massachusetts Institute of Technology
Project Types
Education
Shared By
dmadsen
Project Status
Built
Year Completed
2002
Size
639,764 ft²

Project Description

FROM THE ARCHITECTS:

The 350 bed residence is envisioned as part of the city form and campus form with a concept of “Porosity” along Vassar Street. It is a vertical slice of a city ten stories tall and 330′ long. The Urban Concept provides amenities to students within the dormitory such as a 125 seat theater, as well as a night cafe. House dining is on street level, like a street front restaurant with a special awning and outdoor tables. The corridors connecting the rooms are like streets (11′ wide) which happen upon urban experiences. As in Aalto’s Baker House, the hallway can be more like a public place, a lounge.

CONCEPT: The Sponge concept for the new Undergraduate Residence Hall transforms a porous building morphology via a series of programmatic and bio-technical functions. The overall building mass has five large scale openings. These roughly correspond to main entrances, view corridors, and the main outdoor activity terraces of the dormitory connected to programs such as the gymnasium. The next scale of opening creates vertical porosity in the block with a ruled surface system freely connected to sponge prints, plan to section. These large, dynamic openings (roughly corresponding to the “houses” in the dorm) are the lungs of the building bringing natural light down and moving air up through the section.

The “PerfCon” structure is a unique design, allowing for maximum flexibility and interaction. Each of the dormitory’s single rooms has nine operable windows over 2’ X 2’ in size. The 18’ depth of the wall naturally shades out the summer sun, while allowing the low angled winter sun in to help heat the building. In the deep setting of the numerous windows color is applied to the head and jamb creating identity for each of the ten “houses” within the overall building. The night light from the 9-window rooms will be magical and exciting.

FOUNDATION
With bedrock too deep to reach and soil too unstable to support friction piles, the building was designed to “float” like a boat in water. A volume of soil, equal to the weight of the building above, was excavated. Once complete, the pressure exerted by the building equals the pressure from the soil that had been removed. A 4’ thick solid concrete matt foundation evenly distributes the building load to the soil below.

INFILL WINDOWS
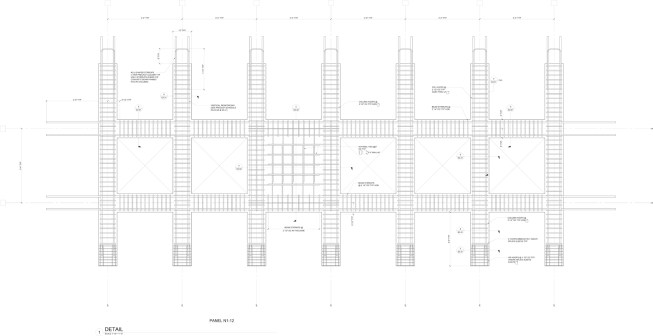
Computer generated Structural models of the PerfCon structure showed areas that were critically overstressed due to long spans and bent spans over open corners. Select windows in these areas were filled in to resolve the overstressed conditions.

COLORED WINDOW JAMBS
Based upon a structural diagram used to coordinate the size of reinforcing steel in the PerfCon panels, the colored jambs express the anticipated maximum stresses in the structure. The colors reveal the size of the reinforcing steel cast within the PerfCon Panels. Blue=#5, Green=#6, Yellow=#7, Orange=#8, Red=#9 and #10. Uncolored areas are #5 or smaller.

NATURAL VENTILATION
9 operable windows per single room allow students options for ventilation, views and privacy. Opening high and low windows takes advantage of the natural rise of warm air within the high-ceiling rooms.

Upcoming Events

  • Protecto Wall VP Standard Installation Video

    Webinar

    Register for Free
  • How Right-Sized Plumbing Saves Money, Saves Water, and Protects Wellness

    Webinar

    Register for Free
  • Building Careers from the Ground Up: The IUPAT Floor Covering Apprenticeship and Training Program

    Webinar

    Register for Free
All Events