Slate House

Project Details

Project Name
Slate House
Location
BaltimoreMD
Project Types
Single Family
Project Scope
New Construction
Shared By
Sara Johnson
Project Status
Built
Year Completed
2017
Style
Modern
Size
7,000 ft²
Team
Design Principal: Douglas Bothner, AIA, LEED AP

Project Description

The 7,000-square-foot Slate House sits on a heavily wooded 3-acre site in Baltimore County, Md., where its seclusion from suburbia is aided by an additional 100 acres of surrounding land protected by the Maryland Environmental Trust. When Douglas Bothner, AIA, a partner at Baltimore-based Ziger|Snead Architects, first visited the site, his clients’ previous architect-designed, ranch-style house still laid in ruins following a devastating fire. “There was one wall of redwood still standing,” Bothner says. “It was heavily gatored and really beautiful—silver and luminous with a very deep char.” [Note: “gatoring” is a wood texture caused by fire.] As his firm developed ideas for a new residence for the clients, an attorney and a retired school teacher, that image stuck with the architect and “set up the idea of a black house,” Bothner says.

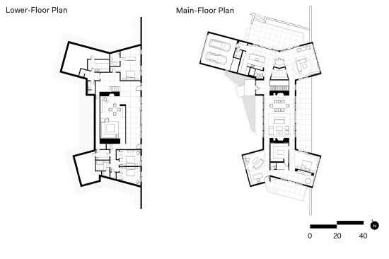
Bothner began designing the house as a variation on the traditional H-shaped plan, with the entry and a living/dining space in the center, a kitchen, family room, and garage to the north, and the master suite to the south. To maximize views and make the house a little less formal, he opened the wings from 90 to 105 degrees and, with this slight inflection, introduced a contemporary slant on tradition that’s also reflected in the gabled massing. The form comprises an extruded 25-foot-wide, 25-foot-tall gable with a traditional 12/12 roof.

The couple wished to live on a single level as they age, so the architects positioned the primary living elements and the master suite on the main floor, which meets the driveway on the sloped site. The plan for the lower floor, designated for three guest bedrooms as well as a media room, is not identical to the upstairs. Rather, its backyard-facing façade is a straight wall rendered in orange-hued Cor-Ten steel, with the east-facing gables of the main floor cantilevered over it. Outside the house, a raised terrace and swimming pool are located off the main-level family room and kitchen, and exterior stairs tucked behind the Cor-Ten retaining wall lead to a less formal lawn outside the lower level.

Jet-black slate shingles, sourced from Spain and a bit larger than average to ensure the house reads as contemporary, define the roofs and their support walls. The black-based palette continues with the wood-siding clad faces of each gable, finished with the traditional Japanese shou sugi ban charring technique—reminiscent of the ruined remains that greeted Bothner on his first site visit.

Although the gabled volumes are identical in section, the articulation of each of the four faces differs: The garage volume is opaque with solid wood; the master study has a punched, square window; the master suite has a 10-foot-tall window that runs the full width of the volume; and the family room is fully glazed.

Inside, black 4-foot by 4-foot Italian ceramic tiles cover the floors, but the space is otherwise finished in bright tones, with predominantly white walls and ceilings of skimcoated plaster.

The simple forms with relatively long spans were created with steel ridge beams infilled with conventional wood framing. The energy-efficient house is clad with 5.5-inch insulated panels, resulting in R-49 walls and roofs, and the 1-inch insulated, low-E, argon-filled window units help maintain the building envelope’s high performance. Radiant heat flooring is provided via geothermal wells located under the driveway.

In both material and form, the Slate House is a place of memory. Its gabled roofs recall centuries of Mid-Atlantic residential architecture, overlaid with a minimal contemporary material strategy whose primary black hue subtly recalls the fate of the owners’ previous house.


Project Credits
Project: Slate House, Baltimore County, Md.
Client: Dale and Marlene Adkins
Architect: Ziger|Snead Architects, Baltimore . Douglas Bothner, AIA (partner); Matthew Rouse, AIA (architect)
Interior Designer: Jenkins Baer Associates
Mechanical Engineer: Aire-Craft Heating and Cooling
Structural Engineer: Morabito Consultants
Electrical Engineer: Gramophone
General Contractor: Blackhorse Construction
Landscape Architect: Campion Hruby Landscape Architects
Lighting Designer: Flux Studio
Size: 7,000 square feet
Cost: Withheld

This article appeared in ARCHITECT’s November 2018 issue.

Situated on 3 acres and surrounded by Maryland Environmental Trust land, the Slate House is a contemporary retreat that respects the nature and legacy of the vast and densely wooded site. The new 7,000-square foot building replaces a late 60’s, ranch-style house that was destroyed by fire.

The recent house fire created a physical, emotional, and ecological shift between owners, land, and the surrounding ecology. Rising from the ashes of its predecessor, the design team set out to reconnect the site to the existing contextual environment. The home and gardens are designed as a metaphor for healing, reflection, and relaxation.

The design employs an archetypal gable form, a geometric extrusion that is both reductive and minimal, that yields cathedral ceilings emphasizing the verticality of the trees. Dark slate shingles wrap the sides and roof as a protective shell. Charred wood siding caps the gable ends evoking the memory of the former home. Both materials contrast with the open, light-filled volumes of the interior. Large expanses of mahogany framed window walls maximize views of the surrounding forest, blurring interior and exterior spaces. Clean and direct geometries combine with natural materials of stone, wood, steel, and water to express rawness and simplicity.

Upcoming Events

  • Protecto Wall VP Standard Installation Video

    Webinar

    Register for Free
  • How Right-Sized Plumbing Saves Money, Saves Water, and Protects Wellness

    Webinar

    Register for Free
  • Building Careers from the Ground Up: The IUPAT Floor Covering Apprenticeship and Training Program

    Webinar

    Register for Free
All Events