Split Level Revival

Project Details

Project Name
Split Level Revival
Architect
Liv Companies
Project Types
Single Family
Project Status
Built
Year Completed
2017
Size
1,800 ft²

Project Description

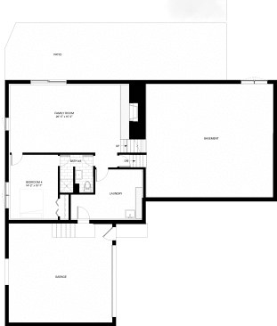
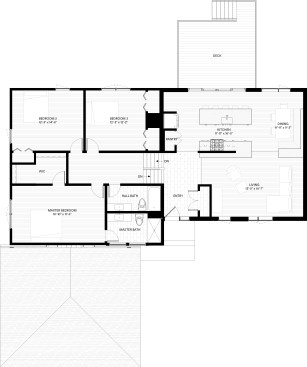
Our brave clients had just purchased this 1960's split-level when they approached us to help realize it's potential. Our clients were a recently engaged couple previously living independently. They sought to find a unique home to make their own. The house had very dark tones throughout and very little natural light or connection to the outdoors. The mid-century split-level was also conflicted in styles with a bay window, rustic brick, and a homogenous exterior that masked the unique forms that originally composed the curb appeal of the house. Our clients were luckily able to see beyond these detractions and they recognized with the right architect and builder, this home could be awesome! Our team first looked at the house for its unique positives: graceful vaulted ceilings with cedar-clad exposed beams, a relatively open layout, exposed brick walls, and an expansive lower family room space. We accentuated these characteristics that made the Owner's want to buy the home in the first place, while re-working the layout for a more modern use and feel. We extended the center partition to the ceiling and wrapped it with kitchen cabinets and family room built-ins, moved the entry closet to create a new entrance separation with new metal rail stairs, re-designed the window compositions, and added clear cedar accents both inside and out. To both spatially enlarge the kitchen and connect the spaces to the back deck, we added a 12’ wide double sliding glass door and continued a new window composition over the new built-in banquette. Open shelving divides the living spaces from the kitchen & dining spaces, and also creates a low horizontal focal point to juxtapose the grand vaulted ceilings. Additionally, we remodeled two baths, added a full bath in the basement, and refreshed the rest of the home throughout. with new flooring, paint, and windows. It was a significant whole-house remodel and the transformation is impossible not to notice…. in a good way!

Upcoming Events

  • Happier Homebuyers, Higher Profits: Specifying Fireplaces for Today’s Homes

    Webinar

    Register for Free
  • Sales is a Sport: These Tactics Are the Winning Play

    Webinar

    Register for Free
  • Dispelling Myths and Maximizing Value: Unlock the Potential of Open Web Floor Trusses

    Webinar

    Register for Free
All Events