Studio Retreat

Project Details

Project Name
Studio Retreat
Location
New OrleansLA
Architect
studioWTA
Project Types
Single Family
Project Status
Built
Year Completed
2014
Size
600 ft²

Project Description

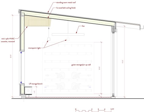
At the rear of an existing mid-century ranch-style residence in the Lower Garden District, a studio and guest pavilion is designed to provide temporary quarters for visitors and permanent space for the owners’ creative endeavors, including fine art and music, while focusing on blurring the line between interior and exterior space as an environmental experience. The existing yard is a lush garden–lovingly cultivated year-round by the owners–who spend a significant amount of time out-of-doors. The program includes an expansive studio with concealed storage for guitars–which doubles as pin-up space–and built-in display storage for LPs, which also performs as a bench with cabinets for a turntable, receiver and flat files. A serene bathroom is adjacent, with custom cypress vanity, mirror and wardrobe, and a marble-clad shower and bench with infinity-edge window to further dissolve indoor/outdoor separation. The soaring studio space is proportioned for maximum filtered light and acoustic performance for playing of live guitar and recorded music. Oversized sliding glass doors and smaller operable windows encourage cross-ventilation, and a bathroom skylight allows venting from that area. A dual-height, low-sloped standing seam metal roof responds to programmatic needs and existing building conditions. The interior includes seamless, epoxy-coated floors, and wood lath as a wall finish to bring visual warmth and acoustic absorption to the space. Exterior Ipe wood siding in a rain-screen assembly and blown-in insulation improve the building’s thermal envelope. Custom metal window and door frames add to the bespoke quality of the space.

Upcoming Events

  • Happier Homebuyers, Higher Profits: Specifying Fireplaces for Today’s Homes

    Webinar

    Register for Free
  • Sales is a Sport: These Tactics Are the Winning Play

    Webinar

    Register for Free
  • Dispelling Myths and Maximizing Value: Unlock the Potential of Open Web Floor Trusses

    Webinar

    Register for Free
All Events