The Diana Center, New York

Project Details

Project Name
The Diana Center, New York
Project Types
Cultural
Shared By
Devan
Project Status
Built
Size
98,000 ft²

Project Description

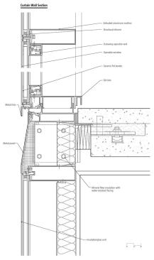
The Diana Center, designed by New York–based Weiss/Manfredi for Barnard College, looks simple: a five-story glass prism served straight-up. A closer reading, however, reveals a narrative of complexity. The façade is paneled in glass, but not in a display of transparency for transparency’s sake: some panels have a graduated frit; others are shadow boxes, with space between a translucent glass outer layer and a second opaque inner layer. The functions inside the building establish whether the panels will be opaque, transparent, or something in between. A swath of transparent glass rises diagonally up the Broadway façade, revealing a stepped, four-story atrium full of activity. The architects have created a gesammtkunstwerk, a design addressing urbanism, architecture, landscape, and social life. And that design addresses both the big picture and the small: the hazy quality of the shadow box façade panels is echoed in translucent resin tabletops.

Read the full article: http://architectmagazine.stg.zonda.onl/education-projects/diana-center.aspx

Upcoming Events

  • Happier Homebuyers, Higher Profits: Specifying Fireplaces for Today’s Homes

    Webinar

    Register for Free
  • Sales is a Sport: These Tactics Are the Winning Play

    Webinar

    Register for Free
  • Dispelling Myths and Maximizing Value: Unlock the Potential of Open Web Floor Trusses

    Webinar

    Register for Free
All Events