The Pool House

Project Details

Project Name
The Pool House
Location
Terrell HillsTX
Project Types
Single Family
Project Status
Built
Year Completed
2014
Size
1,100 ft²

Project Description

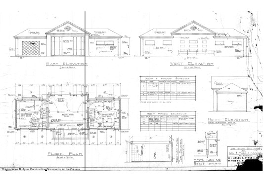
This Historic Pool House and grounds are a part of a larger Estate property in Terrell Hills Texas-part of central San Antonio. Both the Main House, Pool Cabana and backyard Pool/grounds were designed by Atlee B. Ayres-who’s original firm roots established many of the South Texas’ best known Architectural Firms. Found in a state of great disrepair, the original Cabana and Pool were almost considered unsalvageable. It was the keen interest of the current Owners of the property and their understanding of its historic significance that allowed the reconstruction of this wonderful landscape centerpiece. The owners had been working on the grounds and Main Home of the property for several years and the pool and cabana were next on the list of completion. During early design reviews, it was found that the pool and cabana had shifted over through the many years of expanding soils and neglect. Excavation to the original “bones” of the building and pool allowed the design team to find the spirit of the original landscape pavilion and pool structure. Careful attention to unique details for its original construction that included steel joists, new cast stone window sills, true divided light wood windows, integrated copper gutters hidden within the original slate roofing tile were studied and rebuilt to engage the original structure. The restoration gently pushed the Cabana into the 21st century by offering vaulted ceiling of the original structure and engaging the hidden oculus windows of the Lanai. The Lanai offers a shaded moment away from the hot Texas afternoons and a new full kitchenette and grille, which creates a great space for entertaining.

Upcoming Events

  • Protecto Wall VP Standard Installation Video

    Webinar

    Register for Free
  • How Right-Sized Plumbing Saves Money, Saves Water, and Protects Wellness

    Webinar

    Register for Free
  • Building Careers from the Ground Up: The IUPAT Floor Covering Apprenticeship and Training Program

    Webinar

    Register for Free
All Events