The Six

Project Details

Project Name
The Six
Project Types
Project Scope
New Construction
Shared By
Mahesh Rajanala
Project Status
Built
Room or Space
Other

Project Description

2009 RADA
Single-Family Production / Detached / Merit

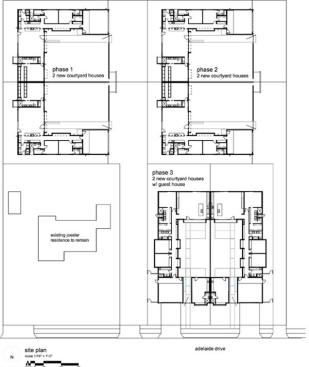
The houses in this Arizona infill development didn’t have anywhere to turn. Built on the back sections of deep lots, four of the six face private drives and the fences of nearby buildings.
Still, Luis Ibarra and Teresa Rosano, AIA, LEED AP, wanted to make the most of their native city’s outdoor living opportunities, so they stretched narrow floor plans around oversized courtyards. Their approach worked, both to sell the spec houses and to win our judges’ approval. “The courtyard is the best thing about it,” raved one. “It’s a classic Tucson move.”

“The design takes advantage of cool desert nights by letting each house open up into a secure, private space,” Ibarra explains. L-shaped footprints mean nearly every room flows into the courtyard. Concrete block walls finished in white stucco also were inspired by traditional desert building methods, while interiors offer contemporary living with sleek finishes and airy spaces.

Upcoming Events

  • Protecto Wall VP Standard Installation Video

    Webinar

    Register for Free
  • How Right-Sized Plumbing Saves Money, Saves Water, and Protects Wellness

    Webinar

    Register for Free
  • Building Careers from the Ground Up: The IUPAT Floor Covering Apprenticeship and Training Program

    Webinar

    Register for Free
All Events