The Theatre School at DePaul University

Project Details

Project Name
The Theatre School at DePaul University
Location
Chicago
Project Status
Built
Style
Modern
Team
Consultant: Kirkegaard
Consultant: WMA Consulting Engineers
Consultant: Hitchcock Design Group

Project Description

FROM AIA CHICAGO:

The  Theatre School serves as DePaul University’s western gateway.  The building is dynamic, yet respectful to the neighborhood.

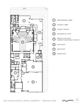
The five-story building is a composition of rectangular forms clad in limestone, translucent, and transparent glass.  More than seven thousand square feet of green roof is located on multiple roof levels. Form and materials are used to express program diversity; two theatres, scenery fabri­cation shops, rehearsal rooms, movement rooms, acting labs, lecture halls, offices, support spaces, and script library.

The shop spaces are located on the ground floor, with large expanses of glass, revealing the inner workings of theater to the community at large. Wide corridors and open lounges encourage  spontaneous collaboration. On the fifth level a sky-lit lounge brings daylight into the core of the building. 

The lobby invites informal gathering of theatre goers before and after performances in the 250-seat thrust theater, and allows for chance encounters with actors and crew. It also serves as a performance space and a lively “living room” with floor-to-ceiling glass connecting to the outdoors.

In keeping with the street energy, a 100-seat flexible theater cantilevers from the fourth floor.  The theater features a double-skin glass wall with color-changing LED lighting facing Fullerton Avenue.

Upcoming Events

  • Protecto Wall VP Standard Installation Video

    Webinar

    Register for Free
  • How Right-Sized Plumbing Saves Money, Saves Water, and Protects Wellness

    Webinar

    Register for Free
  • Building Careers from the Ground Up: The IUPAT Floor Covering Apprenticeship and Training Program

    Webinar

    Register for Free
All Events