Urban Kitchen Suburban Setting

Project Details

Project Name
Urban Kitchen Suburban Setting
Project Types
Single Family
Project Status
Built
Year Completed
2017
Size
500 ft²

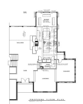
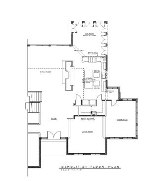
Project Description

The homeowners came to us wanting a modern full kitchen design build, which included expanding the kitchen into their adjacent sunken sunroom. We created the design and look of an urban kitchen in a suburban setting. The two room renovation had an existing wall breaking up the spaces and blocking beautiful golf course landscape views. We designed and built a seamless space by removing the wall between the rooms and building up the sunken floor flush with kitchen, replacing existing patio doors and flooring. We also eliminated existing kitchen skylights that caused excessive glare to the space, raised the ceiling and added painted wood beams that vaulted to 18’. The sunroom is now used as a hearth and media room for entertaining off the kitchen capturing the golf course and pond features. The custom built-in cabinets and 19’ waterfall-island provides the ultimate cook’s paradise incorporated with range sink, dining for six, beverage and wine center. The kitchen is now an open modern space for family and entertaining.

Upcoming Events

  • Protecto Wall VP Standard Installation Video

    Webinar

    Register for Free
  • How Right-Sized Plumbing Saves Money, Saves Water, and Protects Wellness

    Webinar

    Register for Free
  • Building Careers from the Ground Up: The IUPAT Floor Covering Apprenticeship and Training Program

    Webinar

    Register for Free
All Events