Urban Zen

Project Details

Project Name
Urban Zen
Location
MinneapolisMN
Project Types
Single Family
Project Scope
Renovation/Remodel
Project Status
Built
Year Completed
2015
Size
120 ft²

Project Description

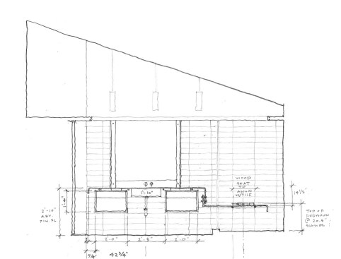
The existing second floor of this family home had an awkward plan which required walking through the master bedroom and master bath to get from the front bedrooms of the house to the back bedrooms. As part of designing the couple’s new bathroom, a reworked pathway connects these two ends by creating a double-loaded hallway, with a new couple’s suite to the south and a new laundry and additional closet space to the north. For the new bathroom, serenity and simplicity were the couple’s core goals. Natural grey slate and unadorned white tile were chosen to harmonize with the warmth of natural Douglas fir woodwork to create a balanced and spa-like environment. Unadorned wood, and painted lacquer cabinet boxes provide storage for the vanity, and unite with a handcrafted custom metalwork countertop and integrated sink basin. The countertop turns down at one end and extends into the shower to form a seat with cedar plank detailing. Natural light streams in from a skylight above, using the white tile surface to bounce around the space. Light is shared with the adjoining bedroom through transparent clerestory glass. Soffits, lighting, and minimalist trim detailing further tie the design into one integrated and inspiring retreat.

Upcoming Events

  • Protecto Wall VP Standard Installation Video

    Webinar

    Register for Free
  • How Right-Sized Plumbing Saves Money, Saves Water, and Protects Wellness

    Webinar

    Register for Free
  • Building Careers from the Ground Up: The IUPAT Floor Covering Apprenticeship and Training Program

    Webinar

    Register for Free
All Events