Valley House

Project Details

Project Name
Valley House
Location
TorontoOntario
Architect
Superkül
Project Types
Single Family
Project Status
Built
Year Completed
2015
Size
3,949 ft²
Team
Builder: Derek Nicholson Inc., Builder

Project Description

2017 Builder’s Choice & Custom Home Design Awards
Renovation: Merit

One of the foremost priorities in Superkül’s renovation and expansion of a family home in Toronto’s Hoggs Hollow neighborhood was the preservation of its architectural character. The clients chose the local firm in part for the partners’ knowledge of midcentury modern design and asked them to expand and enhance the structure’s existing aesthetic.

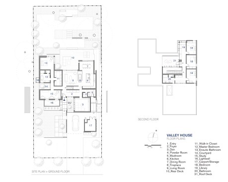
The expansion respects the home’s previous shape and footprint, as most of the additional square footage is on the second floor. The interiors, old and new alike, are open, fluid, and well-lit. The project team located the primary living areas toward the rear of the property, where floor-to-ceiling windows offer views of nearby trees, a rising ravine wall, and a newly constructed ipe wood deck. New finishes include walnut floors and teak and cherry millwork, contrasted by white walls with dark steel plate accents. The home’s original white brick cladding is preserved on the exterior, and blends well with the concrete blocks, cement board, and mahogany-stained plywood additions.

Beyond style and space, energy-efficient design principles and materials are among the renovation’s integral improvements. The project team updated the home’s HVAC and other systems for more efficient operation. Passive ventilation provides natural cooling during the summer, augmented by a three-zone heating/cooling system with a heat-recovery ventilator. The design maximizes natural daylight, while deep-set windows with vertical plywood fins and PVC-free window shades allow the home’s residents to control solar gain. — M.S.

“The project is beautiful in both design and detail throughout. It’s filled with gorgeous interior spaces.” – Juror Sebastian Schmaling

Click here for all of the 2017 Builder’s Choice/Custom Home Design Award winners.

From the architects. Built for a family of five, this house in Toronto’s Hoggs Hollow neighbourhood occupies a deep lot on a reverse ravine, with a heavily forested slope rising steeply behind. superkül’s renovation and addition respects the legacy of the existing bungalow’s Mid-Century Modern heritage while establishing a deeper connection to site. Consequently, the existing motif of courtyards and enclosures has been amplified to focus attention and activity to particular zones of the house, and the smooth integration of interior and exterior spaces has been achieved. Landscape gestures break up the expanse of the lot to create layers of experience and intermediary zones of progression. Planted with shallow grasses, a Corten-enclosed forecourt softens and mediates the approach to the front door. To the right, a sheltered carport retained from the original house projects beyond the street-facing elevation, beckoning entry under the canopy of the elegantly flat-roofed enclosure. The ground-floor expansion respects the home’s previous footprint, with the bulk of the additional square footage manifesting in the partial second-floor addition, which is set back from the projecting carport in deference to the clean, spare lines of the existing structure. Material harmony is established on the exterior; the original white brick cladding was retained, complemented by concrete block, cement board, and marine-grade plywood stained a deep mahogany. On the interior, the spaces are open, fluid and well-lit in keeping with Modernist principles. The organizing device of the stair articulates the east-west spine of the house; the primary living areas are located at the rear to capitalize on views of the majestic trees and lushness of the rising ravine wall. Here, a sizeable deck constructed from hard-wearing ipe wood extends to envelop the garden landscape; it becomes an outdoor room unto itself, a three-sided open-air courtyard. A varied and textured material palette addresses the clients’ predilection for colour and contrast. As such, numerous compatible wood finishes were specified: walnut floors and teak and cherry millwork predominate, accented by dark steel plate in the fireplace surround and the stair-railing assembly. The study in material and tonal contrasts is most apparent in the den, which is impactful in its intimate and subdued ambiance. Light from the west-facing window wall makes the subtleties of the room perceptible, highlighting the delicate textures and striations of the dark grey wallpaper and the pleasing grain of the cherrywood ceiling. The project establishes a precedent for residential design in its sensitive approach and recognition of the particular contextual conditions of the physical landscape and historical Mid-Century Modern significance – in contrast to the proliferation of faux chateaux populating many residential enclaves in Toronto. In keeping with the datum lines of the remaining original houses in the neighbourhood, the home’s elegant massing and formal composition, well-executed detailing, and pleasing material palette of warm wood, pale brick and cement board establishes a harmonious relationship with the landscape, contributing to an unparallelled richness of experience.

Upcoming Events

  • Happier Homebuyers, Higher Profits: Specifying Fireplaces for Today’s Homes

    Webinar

    Register for Free
  • Sales is a Sport: These Tactics Are the Winning Play

    Webinar

    Register for Free
  • Dispelling Myths and Maximizing Value: Unlock the Potential of Open Web Floor Trusses

    Webinar

    Register for Free
All Events