Villers Abbey Visitor Center

Project Details

Project Name
Villers Abbey Visitor Center
Project Types
Cultural
Shared By
Sfregam
Project Status
Built
Year Completed
2016
Team
Leader architect: Andrea Tenuta
Leader architect: Delphine Péters

Project Description

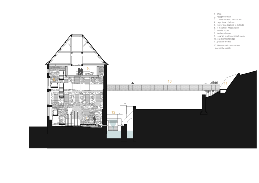
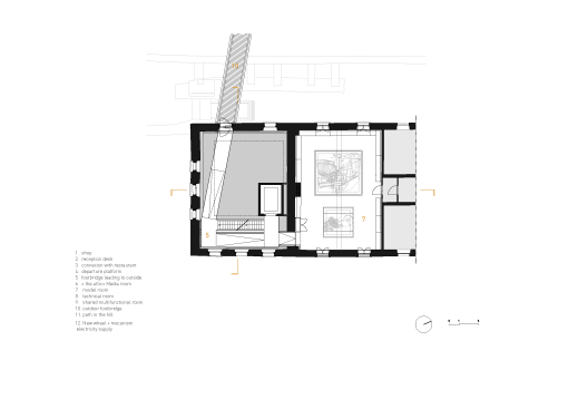
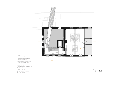
The Villers-La-ville abbey site is crossed and split by the N275 national road so it looses logic and unity. Architecture, through a common intervention in landscape and scenography fields, try to reunite the full cistercian composition plan. The project leads to a truly sequence from the parking to the ruins and prepares the visitors. The new path goes by the mill (reception hall, scenographic spaces, models room), reaches the hill across the new footbridge, continues through the garden, crosses the second bridge over the national road and finally goes down into the ruins. The project highlights a common thread by means of sober materials (corten, wood, concrete) set up in various ways.

Upcoming Events

  • Protecto Wall VP Standard Installation Video

    Webinar

    Register for Free
  • How Right-Sized Plumbing Saves Money, Saves Water, and Protects Wellness

    Webinar

    Register for Free
  • Building Careers from the Ground Up: The IUPAT Floor Covering Apprenticeship and Training Program

    Webinar

    Register for Free
All Events