Waterview Condominium

Project Details

Project Name
Waterview Condominium
Location
ArlingtonVa.
Project Types
Single Family
Project Scope
Interiors
Project Status
Built
Size
4,600 ft²
Team
Builder: Peterson & Collins, Builder

Project Description

2018 Builder’s Choice & Custom Home Design Awards
Architectural Interiors, Merit

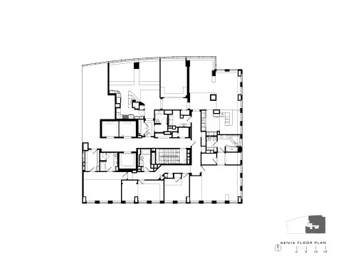
Located in suburban Arlington, Va., this condominium apartment sits atop a 30-story-tall structure with panoramic vistas of the nation’s capital, just slightly north of the east-west axis of the National Mall. The client requested “open space focused on the views,” according to local architect Robert M. Gurney, who gutted the space and transformed the 4,600-square-foot apartment into a series of carefully wrought spaces that make the most of the stunning perspectives on three sides of the building.

An open-plan living area spans the north side of the apartment, with a master bedroom suite along the east edge, and a second bedroom and supplemental living spaces along the south. The apartment has a 10-foot-high ceiling (with floor-to-ceiling glazing to match), but building infrastructure precluded taking advantage of the full height in every location. Gurney devised an origami-inspired composition of ceiling planes for the main living areas that maintains a continuous finished ceiling while concealing fixed building elements above.

“The floating, folded plane never engages the walls, columns, or millwork components,” Gurney explains. While intentionally irregular in pattern, it subtly rises as it approaches the window wall, which draws gazes toward the views and reflects daylight into the apartment’s core. A simple, clean selection of elegant materials, including steel, wenge, white oak, and cleft slate, was used for finishes. Their refined character is then juxtaposed in places with the raw and austere—including selective exposition of the base building’s concrete structure.

Incorporated into the master suite is a “monastic” spa room, a rather atypical programmatic element that Gurney designed with a large Japanese soaking tub as its centerpiece. Quiet is evoked through a rich mix of materials including absolute black granite with vertical grain Western red cedar walls—creating a harmonious space that feels far away from the stress-filled city in the distance.—E.K.

“It’s intelligent and inventive.” — Juror Donald Lococo

Upcoming Events

  • Protecto Wall VP Standard Installation Video

    Webinar

    Register for Free
  • How Right-Sized Plumbing Saves Money, Saves Water, and Protects Wellness

    Webinar

    Register for Free
  • Building Careers from the Ground Up: The IUPAT Floor Covering Apprenticeship and Training Program

    Webinar

    Register for Free
All Events