Westview Kitchen

Project Details

Project Name
Westview Kitchen
Architect
Huseby Homes, LLC
Project Types
Single Family
Project Status
Built
Year Completed
2017
Size
375 ft²

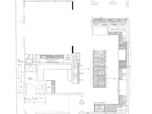
Project Description

The main goal of this renovation was to modernize the kitchen while staying true to the timeless Louisiana antebellum style of the home. The clients are local restauranteurs who desired the workability and quality of a commercial kitchen. We removed a cased opening in an adjacent hallway to provide flow from the prep space to the eating area. The large ceiling beams were original to the house and it was the clients' wish to reuse them in the new layout. This required a painstaking removal process by our Huseby Homes in-house carpenters to ensure the timbers were not damaged. No expense was spared during this project which allowed the design team to fully customize the space. The clients wanted to add a playful touch in the cabinetry design. This was accomplished by incorporating a hidden pantry door on a wall of symmetrical cabinets. When the door is closed, there is the appearance of a typical full-height cabinet. However, the panel on the left side pushes in to reveal the pantry behind. The flooring selected was Mansion Arcade, which is an Italian ceramic tile designed to look like antique, hand-shaved parquet wood. This element once again ties into the vintage, but modern, feel of the kitchen. Working with clients in the restaurant business, it was important for the layout to be as functional as a commercial kitchen. A large island, cut out of a full-size slab of quartzite, provides ample prep space to compliment the 6-burner dual-fuel Wolf rang, vent hood, and warming drawer. This renovation created an ideal platform for culinary creativity and entertaining.

Upcoming Events

  • Protecto Wall VP Standard Installation Video

    Webinar

    Register for Free
  • How Right-Sized Plumbing Saves Money, Saves Water, and Protects Wellness

    Webinar

    Register for Free
  • Building Careers from the Ground Up: The IUPAT Floor Covering Apprenticeship and Training Program

    Webinar

    Register for Free
All Events