Whiteline Residence

Project Details

Project Name
Whiteline Residence
Location
120 W Fifth St.Des MoinesIA50309
Project Types
Multifamily
Project Scope
Renovation/Remodel
Shared By
Jill
Project Status
Built
Year Completed
2016
Style
Modern
Size
3,800 ft²

Project Description

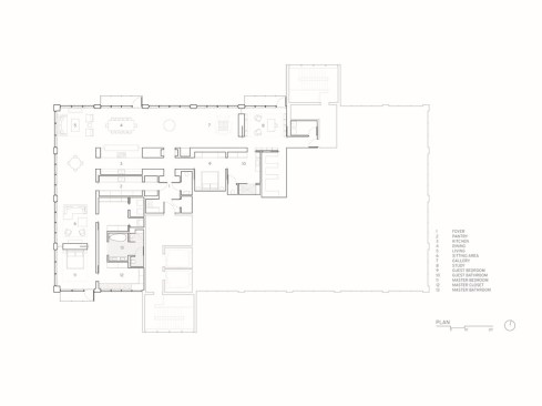
This 3800 sf residence, which occupies the top floor of a converted historic urban warehouse, balances the duality of the clients’ public and private lives through processional layout and spatial contrast. The design assigns bright, open social spaces to the perimeter and encloses private areas with dark tones and rich materiality. The juxtaposition provides the chiaroscuro of the clients’ extensive calligraphic art collection, writ large in space.

Entering the residence, daylight draws one through a compressed, enveloping vestibule out into the open living area. The airy communal space wraps the warehouse’s northwest corner, maximizing natural light and the expansive panoramic view. Dark-stained white oak piers cordon off its ends to provide enclosure and reserve views for the master bedroom and study, respectively.

Support spaces can be found in the interior of the unit, where lowered ceilings enhance experiential intimacy. Floors are radiant, polished concrete. Bathrooms are finished in marble slabs, marble penny tile, and pickled white oak. Lending pragmatic logic to an experientially-driven layout, low ceilings coincide with a dense network of existing duct banks, conduit runs, sprinkler pipes, and roof drains.

Upcoming Events

  • Protecto Wall VP Standard Installation Video

    Webinar

    Register for Free
  • How Right-Sized Plumbing Saves Money, Saves Water, and Protects Wellness

    Webinar

    Register for Free
  • Building Careers from the Ground Up: The IUPAT Floor Covering Apprenticeship and Training Program

    Webinar

    Register for Free
All Events