Whole Foods Market on the Alameda

Project Details

Project Name
Whole Foods Market on the Alameda
Location
777 The AlamedaSan JoseCaliforniaUnited States95126
Project Types
Mixed-Use
Shared By
August King
Project Status
Built
Size
32,900 ft²
Team
Principal Architect : Bill Brigham, Field Paoli Architects

Project Description

FROM AIA SAN FRANCISCO:

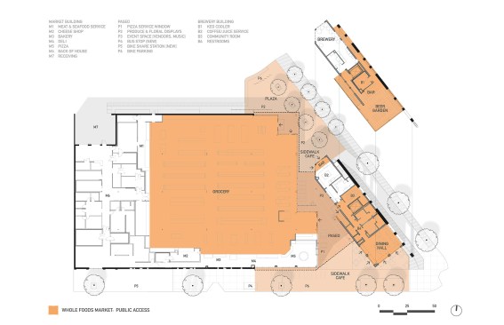
This combined market and microbrewery takes a former brownfield corner lot and transforms it into a dynamic space for the community to enjoy.

The project was divided into two separate buildings to achieve the design objectives of creating a vibrant pedestrian experience along the street frontages and open, active gathering spaces at the building’s edges.

Between the 27000-square-foot single level grocery and 5900-square-foot open-air brewery building is a covered outdoor marketplace that creates a connection between the parking lot and street. Produce and floral displays spill into the shared space from both buildings, filling the marketplace with color and activity. Service windows and seating areas encourage patrons to linger in the space.

The active, open space continues in the open-air brewery building. A breezy, shaded space gives patrons a break from the warm San Jose weather. Overhead bi-fold doors allow for seating to flow into the marketplace, while large windows provide a glimpse into production areas.

The manufacturing history of the neighborhood is reflected in the building form and materials; salvaged wood from the nearby historic Del Monte cannery was even used in the rooftop beer garden. The vibrant color palette was inspired by an aerial view of the nearby salt ponds of the San Francisco Bay.

Upcoming Events

  • Modernize Your Model Homes with Music

    Live Webinar

    Register for Free
  • Happier Homebuyers, Higher Profits: Specifying Fireplaces for Today’s Homes

    Webinar

    Register for Free
  • Sales is a Sport: These Tactics Are the Winning Play

    Webinar

    Register for Free
All Events