Woodley Park House & Garden

Project Details

Project Name
Woodley Park House & Garden
Project Types
Single Family
Project Status
Built
Year Completed
2017
Size
1,800 ft²

Project Description

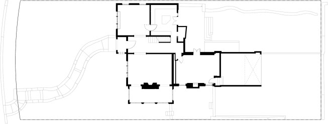
This elegant early 20th century house had been renovated before but had never been made to connect to its site in any way, a connection made difficult by the tightness of the urban lot with its compound slopes and steep topography. Working from the outside in, the design began by fitting a pool and terrace in to the rocky sloped rear yard, filling the space; the interior responds to this new landscape. The excellent traditional formal rooms of the fine existing house remain and the center hall is extended through to the garden, incorporating the new kitchen as it passes along the way Here, the ceiling lifts up into a complex cubist cross-section, as an extended center hall stair arrives at a new 2nd floor porch, with drop down screens, overlooking the garden. Directly outside the kitchen doors, which fold back to allow retractable screens to drop down, the small terrace ends at a fireplace embedded into the end of the new raised pool, allowing the flames to serve both the terrace and the kitchen. A second upper terrace runs alongside the pool and faces south. The architecture and interiors of the existing house are respected and every effort was made to blend with the more contemporary aesthetic of the additions and the garden. The challenges of the tightness of the site and its topography led to a complex interlocking arrangement of interior and exterior spaces, all in a tiny footprint that accounts for every square inch.

Upcoming Events

  • Happier Homebuyers, Higher Profits: Specifying Fireplaces for Today’s Homes

    Webinar

    Register for Free
  • Sales is a Sport: These Tactics Are the Winning Play

    Webinar

    Register for Free
  • Dispelling Myths and Maximizing Value: Unlock the Potential of Open Web Floor Trusses

    Webinar

    Register for Free
All Events