Zigzag House

Project Details

Project Name
Zigzag House
Location
FalmouthME
Project Types
Shared By
dmadsen
Project Status
Built
Size
2,000 ft²

Project Description

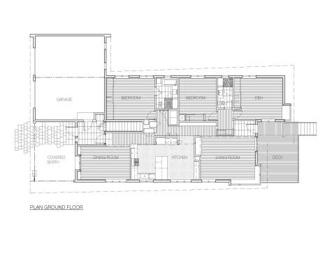
A single story home for a retired couple, the Zigzag House is organized around the notion of a path meandering through a landscape. A two-story covered entry garden forms an exterior room which initiates this path through the house as continuous with the outside landscape. Openings in the roof allow patches of light to track across the ground, up the slate-covered walls, and into the rafters of this outdoor room. Thus this meandering path is initiated within a space of circadian movement drawn into the volume of the house. Within the interior of the home, the path forms a crooked spine which bends around a series of materially discreet objects as one moves through the social spaces in the southern part of the home. This bending promenade is further punctuated by a series of interior apertures that frame oblique views across the space of the house and into the landscape beyond. At the back of the home, large corner window boxes project beyond the exterior envelope of the house, forming threshold spaces which draw panoramic views of the gently sloping field and forest into the living spaces of the home. Sitting in these window boxes, one occupies a space between inside and outside. A raised exterior deck extends toward the forest between these two large windows, and slate steps lead down to the ground and direct one toward a break in the stone wall and the forest beyond. The Zigzag House postulates inhabitation as a form of passage across the land, producing a dynamic form within the landscape and an interior space that is simple yet intricate and inextricable from its site.

Upcoming Events

  • Happier Homebuyers, Higher Profits: Specifying Fireplaces for Today’s Homes

    Webinar

    Register for Free
  • Sales is a Sport: These Tactics Are the Winning Play

    Webinar

    Register for Free
  • Dispelling Myths and Maximizing Value: Unlock the Potential of Open Web Floor Trusses

    Webinar

    Register for Free
All Events