Double Loft in Providence, R.I., by 3six0 Architecture

2 MIN READ

The benefit of old buildings is they’re often blessed with desirable characteristics and good architectural bones that make them ideal for open-plan living. Perhaps that’s why an artist who specializes in ceramics and light-reflective installations and her husband bought this loft space in a 1900s factory building located in Providence, R.I.’s jewelry district. They asked local firm 3six0 Architecture to tailor the loft into two distinct spaces.

“We were asked to convert half of the loft into her live/work space,” says project architect Olga Mesa, LEED AP. The husband was slated to remodel the other half of the loft to his liking, Mesa says, but in the end the couple decided to have the firm execute the build-out.

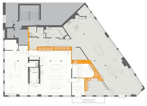
Measuring 4,000 square feet, the space had an odd trapezoidal shape with awkwardly located columns that thwarted straightforward divisions of the space. Because the wife likes light-filled, serene environments and the husband likes raw materials, the design team developed two architectural characters: “cloud,” which has soft rounded corners and appears seamless, white or translucent; and “stack,” which has a more constructed look with wood or MDF with steel details.

Project Details:

project: Double Loft, Providence, R.I.

architect: 3six0 Architecture, Providence

general contractor: Case Construction Co., East Providence, R.I.

project size: 4,000 square feet

construction cost: $125 per square foot

photography: John Horner Photography

“We organized the two loft spaces by mingling cloud and stack into walls and storage spaces,” Mesa says. “Each character is grounded accordingly, stack on his side and cloud on hers, but one is never in isolation from the other.”

Casework and detailing continued the conversation between the two spaces, Mesa says. The architects conceived the husband’s area as “stacked volumes slowly spreading and transforming from closed cabinets to open shelves,” while on the wife’s side casework continues with glass doors and a more monolithic expression.

The design team retained whatever valuable materials it could, restoring the wood floors and cleaning the 11-foot-tall load-bearing brick walls. It also kept the layout for the plumbing and mechanical chases but updated the systems with energy-efficient replacements.

“We applied energy-efficient window treatments to the large original windows and salvaged the few wood floor boards that had to be replaced, from which furniture commissioned by the clients was built,” Mesa explains.

Materials play a key role in open loft spaces, and this project was no exception. Used to reinforce the spatial strategy, materials include MDF panels, blackened steel, dark gray slate tiles, and honed black granite in the husband’s space, while on the wife’s side the designers used gypsum board, Lumasite resin panels, frosted glass, white tiles, Douglas fir, basaltina stone, and soapstone. Yin and yang, blending effortlessly together.

click to see next project

About the Author

Upcoming Events

  • Happier Homebuyers, Higher Profits: Specifying Fireplaces for Today’s Homes

    Webinar

    Register for Free
  • Sales is a Sport: These Tactics Are the Winning Play

    Webinar

    Register for Free
  • Dispelling Myths and Maximizing Value: Unlock the Potential of Open Web Floor Trusses

    Webinar

    Register for Free
All Events