Floor Plans for Modern Families

2 MIN READ

The new move-up home: livable now and later

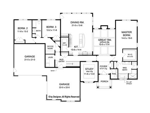
Many homes designed for busy families have two stories, which can limit the long-term potential for aging in place. If you’ve got the lot room, why not choose a roomy one-story home that can transition to an empty nest later on? This one’s full of the kind of details a family needs, like the large pantry and lots of garage space. Homeowners’ teenage kids will appreciate the surprising amount of privacy that the secondary bedrooms enjoy, with the master suite far on the other side of the home. See more images and information.

About the Author

Aurora Zeledon

Aurora Zeledon is Director, e-Commerce Marketing, Merchandising, and Content for Zonda House Plans, which includes house plan sites www.builderhouseplans.com and www.houseplans.com.
With over ten years of experience in the pre-drawn plan industry, she sorts through thousands of designs every week to choose the most interesting, innovative, and marketable house plans to spotlight in Zonda's newsletters, social media, and publications.

Upcoming Events

  • Builder 100

    Dana Point, CA

    Register Now
  • Protecto Wall VP Standard Installation Video

    Webinar

    Register for Free
  • How Right-Sized Plumbing Saves Money, Saves Water, and Protects Wellness

    Webinar

    Register for Free
All Events