Rappahannock Bend Summer House / Guest House, King George, Va.

Merit Award / Accessory Building

1 MIN READ

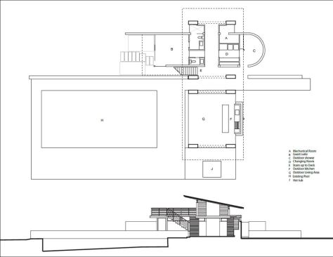
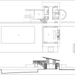
Asked to design a pool house for an existing pool, McInturff Architects envisioned an open porch with a guest suite tucked beneath. A decade ago, the firm had designed an addition to the main house—a 1930s Art Moderne affair with white-painted brick. This building—with its thin copper roof floating atop white brick piers—is a fragment of that work, though the ipe walls and latticework reflect its more natural setting. “The whole thing is supposed to feel like summer,” explains architect Mark McInturff. “I think a building designed for seasonal use should reflect that season.”

The tilted roof and louvered screens provide much-needed shade on this exposed site near the river, and an existing stone wall divides the open-air kitchen and lounge from the conditioned bedroom and bath. The jury praised the crisp interplay of brick and stucco walls, wood core, and steel trusses. “It’s a nice composition with the white panels and warm wood inside,” said one judge.

Entrant/Architect:McInturff Architects, Bethesda, Md.
Builder:Bonitt Builders, Alexandria, Va.
Landscape architect: Crowther & Associates, Annapolis, Md.
Living space: 600 square feet (heated), 1,260 square feet (total under roof)
Site: 100 acres
Construction cost: Withheld
Photographer: Julia Heine/McInturff Architects

About the Author

Upcoming Events

  • Protecto Wall VP Standard Installation Video

    Webinar

    Register for Free
  • How Right-Sized Plumbing Saves Money, Saves Water, and Protects Wellness

    Webinar

    Register for Free
  • Building Careers from the Ground Up: The IUPAT Floor Covering Apprenticeship and Training Program

    Webinar

    Register for Free
All Events