modular: crabapple, omaha, neb.

single-family production / detached / grand

2 MIN READ

randy brown architects, omaha

The judges marveled at the craftsmanship of the Crabapple model at Hidden Creek, a community of 12 modern houses in Omaha, Neb. “It’s interesting that we’re talking about craft relating to production technologies,” mused one.

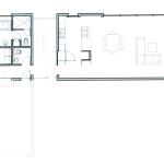
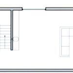
Architect Randy Brown, FAIA, is one of the project’s developers. He and his staff built the 3,000-square-foot house themselves, placing 10-foot-by-20-foot modules atop a poured-in-place concrete foundation. “With the modules, we can grow the house if we want to, and the garage can be adapted,” Brown explains.

Crabapple includes eco-friendly features such as native landscaping, compact fluorescent lighting, and insulated glass windows. Red-painted fiber-cement boards clad its exterior, and bamboo and polished concrete floors reflect natural light throughout the interiors.

Brown left the wood ceiling beams exposed in some areas, adding warmth to the space. He also took great pains to open the house to the nature preserve directly behind it, using an aluminum storefront window system to achieve unbroken views to the outdoors.

One judge compared Crabapple and the rest of Hidden Creek to the mid-century Eichler developments built in California: “Forty to 50 years from now, people will proudly say, ‘I live in one of those,’ the way they do with an Eichler house.”

principal in charge / general contractor: Randy Brown, FAIA, Randy Brown Architects
project manager: Brandon Schumacher, Randy Brown Architects
developers: Randy Brown, FAIA, Paul Brown, Scott Brown, and Rob Luellen, Quantum Quality Real Estate, Omaha
project size: 1,300 square feet to 4,000 square feet per unit
site size: 2.5 acres
construction cost: $80 per square foot
sales price: $200,000 to $600,000 per unit
units in project: 12
photography:Assassi@2008

product specs
bathroom plumbing fixtures:St. Thomas Creations; dishwasher, refrigerator: Electrolux Home Products (Frigidaire); entry and patio doors, windows:EFCO Corp.; exterior siding:James Hardie Building Products; fireplace/wood stove:Malm Fireplaces; flooring (wood):Dale Ocken Floors Co.; hardware:Forms+Surfaces, Ironmonger; kitchen cabinets:IKEA; kitchen plumbing fixtures:Hansgrohe; lighting fixtures: Cooper Lighting (Halo, Metalux); paints/stains:The Sherwin-Williams Co.; roofing:Versico

About the Author

Upcoming Events

  • Protecto Wall VP Standard Installation Video

    Webinar

    Register for Free
  • How Right-Sized Plumbing Saves Money, Saves Water, and Protects Wellness

    Webinar

    Register for Free
  • Building Careers from the Ground Up: The IUPAT Floor Covering Apprenticeship and Training Program

    Webinar

    Register for Free
All Events